da oltre 30 anni la risposta giusta per vendere,acquistare ed affittare
Corso Moncalieri 411, Torino
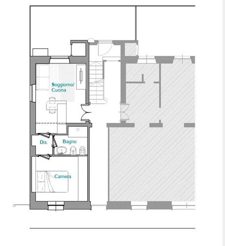
proponeiamo la vendita di un bilocale di circa 45 mq, in Corso Moncalieri ubicato al piano terra di uno stabile di solo due piani, sito in una posizione precollinare e strategica, a breve distanza da Cavoretto e comodo ai principali servizi e Ospedali.
L’immobile è attualmente oggetto di una ristrutturazione completa, con consegna prevista entro un paio di mesi dalla proposta d'acquisto. È ancora prevista la possibilità di scelta dei materiali e la personalizzazione delle finiture interne, al fine di soddisfare le esigenze estetiche e funzionali dell’acquirente.
La composizione interna è la seguente: ingresso living su zona giorno con parete cucina attrezzata, camera matrimoniale, bagno completo di box doccia con termoarredo.
NO BARRIERE ARCHITETTONICHE
L’alloggio è dotato di impianto di riscaldamento autonomo (pompe di calore caldo/freddo) e presenta spese di gestione molto contenute.
Prezzo di vendita già ristrutturato chiavi in mano: € 110.000 (IVA inclusa se prima casa) Recupero fiscale fino a € 44.000, usufruibile tramite le agevolazioni previste per gli interventi di ristrutturazione.
Vendita diretta da società – soluzione ideale sia come abitazione principale sia come investimento, con eccellente potenziale per locazione tradizionale o utilizzo come struttura ricettiva (B&B), data la posizione strategica e la presenza del cortile privato.
Compra casa con noi entro il 28 FEBBRAIO 2026 il ROGITO E' GRATIS. Le nostre competenze per la vendita di un immobile comprendono il costo del rogito notarile (escluso imposte a tasse e eventuale atto di mutuo), che sarà redatto dal notaio che collabora abitualmente con la nostra società.
Il presente annuncio, le immagini e la descrizione non costituiscono alcun vincolo contrattuale. Vi invitiamo a contattarci per ulteriori dettagli e prenotare una visita.
Via Monginevro 20 – 10138 TORINO
Tel.: 011 3352140
Cellulare: 3202697718
mail: info@iulacase.com
Invio messaggio in corso...